
Playground Improvements
Keeping our parks essential and improving the quality of life for our community has been our priority for over 65 years.
All Virginia Beach community recreation centers, parks and park facilities will be open to the public on Monday, Feb. 16. However, all City of Virginia Beach administrative offices will be closed in observance of George Washington Day.
Learn MoreLearn & earn this summer! Summer Youth Employment Applications are officially open.
Apply Now!
Keeping our parks essential and improving the quality of life for our community has been our priority for over 65 years.
Parks & Recreation is currently accepting feedback on ARPA Phase XXII. Please email bphelps@vbgov.com with your comments by Sept. 8.
Send Your FeedbackWith additional funding from City Council, 11 park playgrounds are slated to be enhanced or replaced to reinforce the value to our community. Improvement plans have factored in resident feedback and design trends including accessible and inclusive amenities to ensure all individuals have a safe space to play and stay active!
The following playgrounds are being replaced with American Rescue Plan Act (ARPA) funds in the next three to four years to address a backlog of deferred maintenance:
For site plans and renders of completed playground improvements, please contact us.

This is a 3D render of the new play structures proposed for Doyle Way Park. It shows a play structure with silver details and bright blue and green accents. The new play structure features a straight slide, a covered slide and a spiral slide as well as a new arched swing set and two swizzlers.

This shows the initial drawing of proposed improvements to be made to Doyle Way Park’s playground. Specifically shows a new arch swing set, and improved jungle gym with a spiral slide, tube slide, and a smaller slide. In addition two swizzlers will be added.

This shows the site plan for the proposed Doyle Way Park playground improvements. It marks the existing equipment and trees and shows where the new equipment will be located. The site plan shows the addition of a 6ft wide walking path and bike rack as well as a new playground.

This is a 3D render of the new play structures proposed for Strawbridge Park. It shows a play structure with blue, yellow and pink accents. The new play structure features a climbing structure, rumble seat, and playhills.

This shows the initial drawing of proposed improvements to be made to Strawbridge Park's playground. Specifically shows a new climbing structure, rumble seat, and playhills.

This shows the site plan for the proposed Strawbridge Park playground improvements. It marks the existing equipment and trees and shows where the new equipment will be located. The site plan shows the addition of a new play system.

This is a 3D render of the new play structures proposed for Salem Village Park. It shows a play structure with blue and light green accents in addition to a new Fitness Cluster. The new play structure features a covered slide, a straight slide, a sensory wave wall, and new toddler swings.

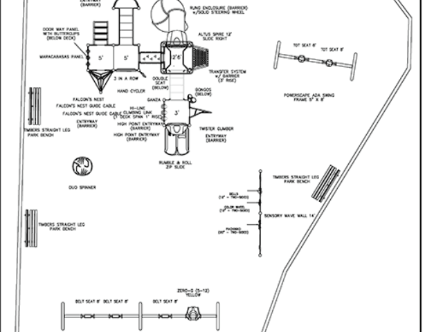
This shows the initial drawing of proposed improvements to be made to Strawbridge Park's playground. Specifically shows a covered spiral slide, a short straight slide, twister climber and sensory wall.

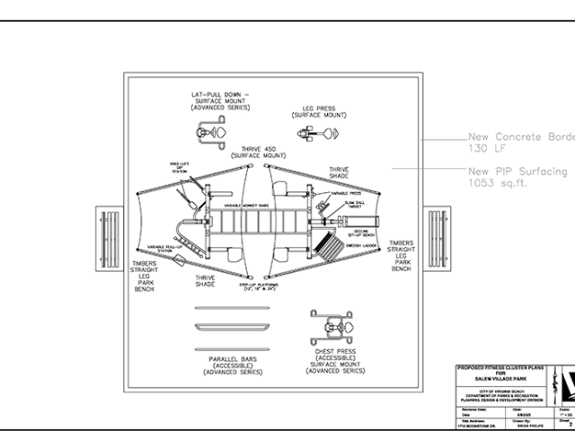
This shows initial plans for a fitness cluster at Salem Village Park. Specifically shows variable monkey bars, various weight training machines for both upper and lower body exercises and new benches for resting.